$499,000
Pompano Beach, FL 33060
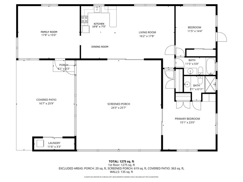
This original 2-bedroom, 2-bathroom gem is a literal time capsule of South Florida charm, ideally located just minutes from the sand and the city's vibrant new pier district. Inside, the character is undeniable. Original terrazzo floors--the gold standard of Florida mid-century design--await beneath the surface, ready to be polished back to their historic glow. The home features exposed wood beam ceilings that add warmth and height, flowing effortlessly around a central kitchen designed as the true heart of the house. Whether you're hosting in the formal sitting room or enjoying the open-concept living area, the soul of this home is felt in every corner. And for the nostalgia lovers? (see more) And for the nostalgia lovers? The guest bath is a masterpiece of vintage design, boasting its original lavender tub, toilet, and wall tile. It's authentic, solid, and perfectly positioned for its next chapter.
1305 SE 2nd Street, Pompano Beach, FL 33060, Pompano Beach, FL 33060
MLS# R11169283
Interested in this property? Contact us to schedule a private showing.
REQUEST SHOWING