$2,000,000
Delray Beach, FL 33444
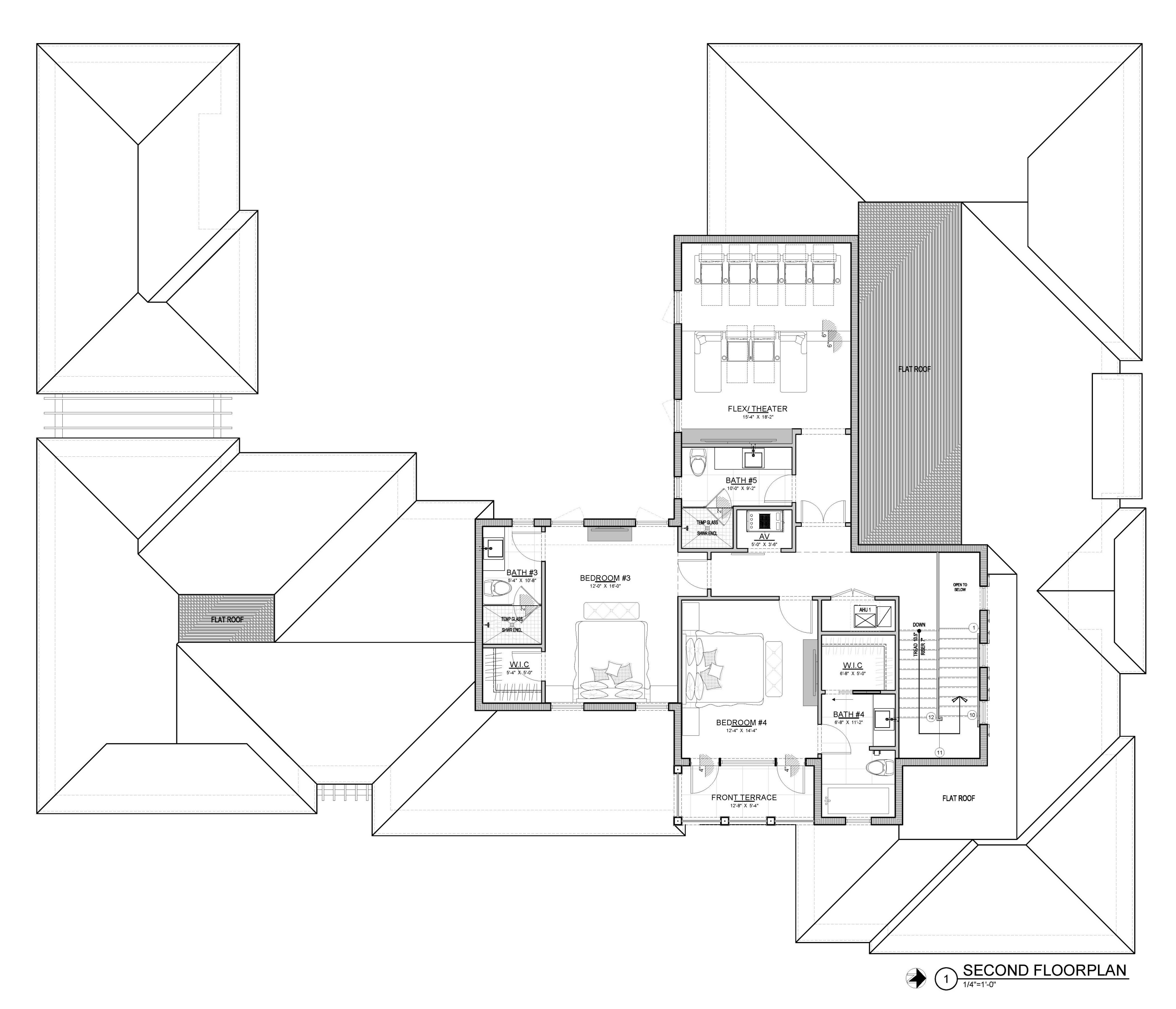
An opportunity to secure a future coastal estate in the heart of Downtown Delray Beach, positioned just four blocks from Atlantic Avenue and less than a mile from the beach. This exceptional 13,165± SF corner lot within the Del Ida Park overlay is offered with award-winning architectural plans by Randall Stofft Architects for a 6,217 total SF (4,941 SF under air) two-story coastal transitional residence. The thoughtfully designed home features six bedrooms, six and a half baths, a resort-style courtyard pool, club/wellness flex space and expansive indoor-outdoor living designed to capture the privacy and lifestyle of the property's unique courtyard layout. Historic review is in its final stage and architectural design is complete, positioning a future owner significantly ahead of the typical new construction timeline in Delray Beach. Architectural plans convey with the sale but are not required to be used. Buyers may modify the design, subject to City approval. Information including prices, measurements, square footages, lot sizes, features, finishes and calculations is subject to errors, omissions, or changes without notice. Buyers should independently verify all information.
514 NE 3rd Avenue, Delray Beach, FL 33444, Delray Beach, FL 33444
MLS# R11133859
Interested in this property? Contact us to schedule a private showing.
REQUEST SHOWING